LOADING

106 Chestnut Street Port Colborne (Killaly East), Ontario L3K 1R6

$119,900

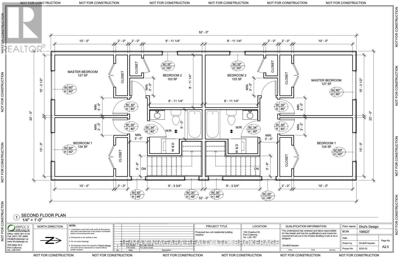
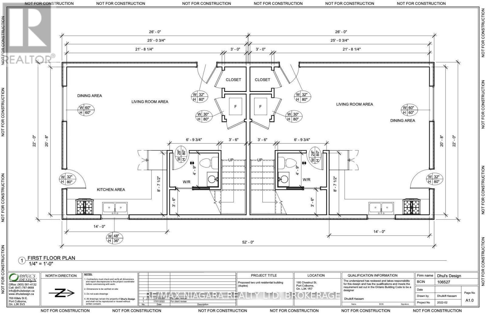
Build with confidence on this well-located, ready-to-develop lot. A site servicing and grading plan is included, along with almost finalized architectural plans for a back-to-back duplex - giving you a head start on approvals and construction. Municipal services are accessible at the road. Enjoy being close to Nickel Beach, Sugarloaf Marina, golf, shopping, schools, and all daily conveniences. With R2 zoning allowing multiple residential uses, including single-family homes and duplexes, this property offers flexibility and strong future potential. (id:49187)

Property Details

MLS® Number X12792318
Property Type Vacant Land
Community Name 875 - Killaly East

Building

Land

Acreage No
Size Depth 126 Ft ,6 In
Size Frontage 30 Ft
Size Irregular 30 X 126.52 Ft
Size Total Text 30 X 126.52 Ft
Zoning Description R2

Utilities

Cable Available
Electricity Available
Sewer Available

https://www.realtor.ca/real-estate/29366061/106-chestnut-street-port-colborne-killaly-east-875-killaly-east

Your Favourites

 

No Favourites Found