4 Bathroom
4000 sqft
Fully Air Conditioned
Forced Air
$799,000
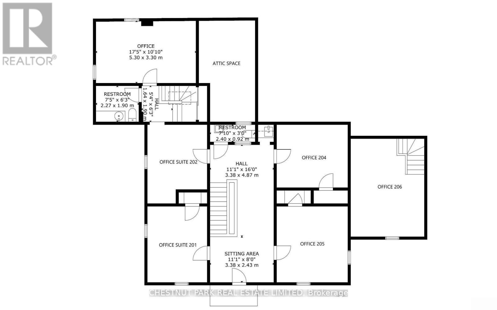
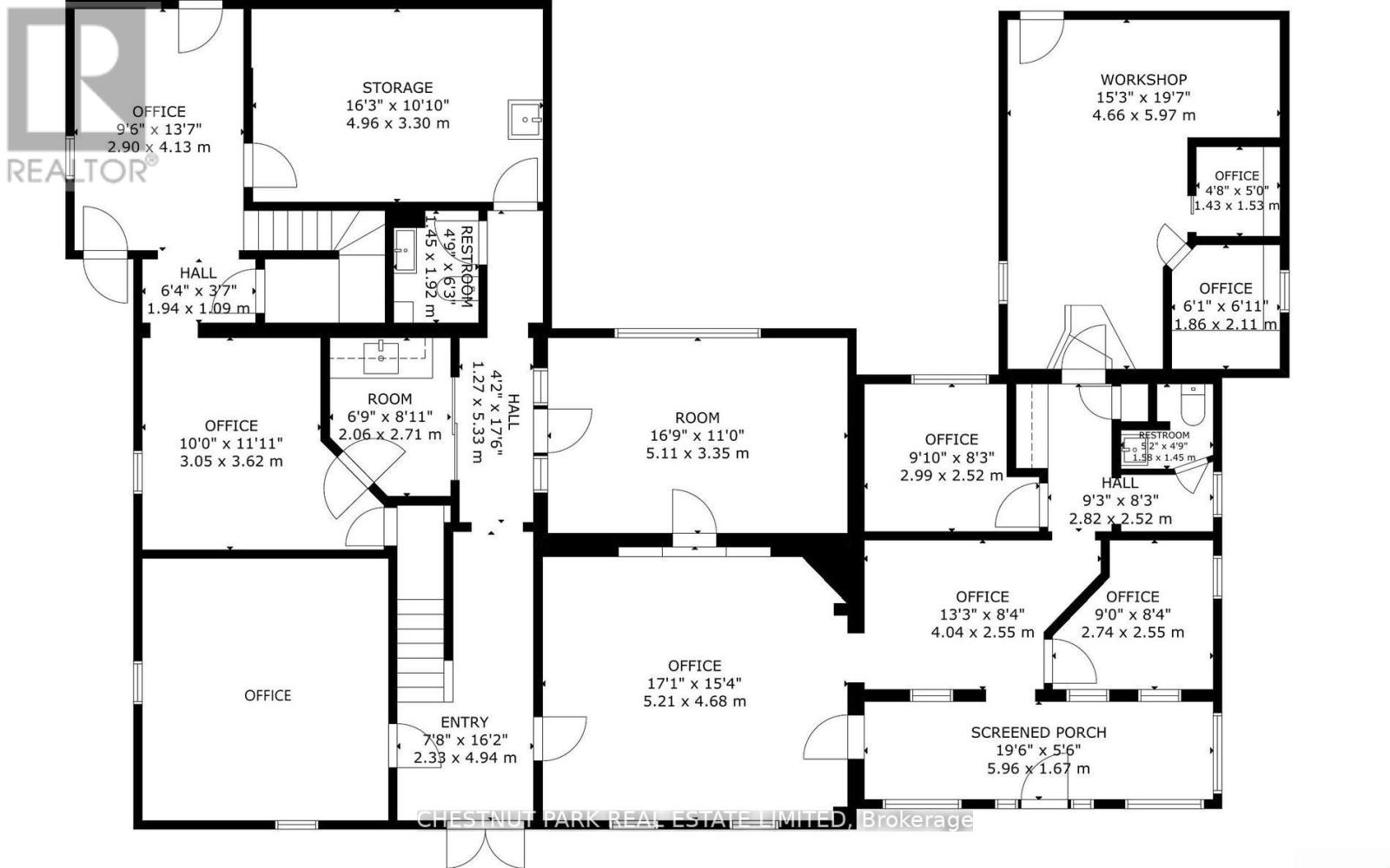
PRINCE EDWARD COUNTY - PRIME COMMERCIAL - RARE OFFERING ON THE OUTSKIRTS OF PICTON! This unique property combines character, functionality, and incredible potential, making it ideal for those seeking to tap into the future. With its classic architecture and original details, this quintessential property exudes timelessness creating a welcoming and professional atmosphere for any business venture. Its convenient location in an up-and-coming commercial corridor provides easy access, high visibility and outstanding curb appeal. With close to one acre of land, there is ample space for parking or expansion. Whether you're an entrepreneur looking to establish your dream business, an investor seeking income potential, or someone wanting a combination of both, this property has you covered. Current configuration of building includes 17 rooms, 4-2 pc washrooms, 3 sets of stairs, and 5 entrances. With 4000 sq ft of interior space and a layout conducive to customization, the possibilities are endless. This iconic building is currently operating as a thriving business centre with nine tenants, but there is tons of untapped potential here. Don't miss your chance to own a property that offers such flexibility & potential! Book an appointment today to come and explore the possibilities! (id:49187)
Property Details
|
MLS® Number
|
X12662730 |
|
Property Type
|
Office |
|
Community Name
|
Hallowell Ward |
|
Parking Space Total
|
20 |
Building
|
Bathroom Total
|
4 |
|
Age
|
100+ Years |
|
Cooling Type
|
Fully Air Conditioned |
|
Heating Fuel
|
Natural Gas |
|
Heating Type
|
Forced Air |
|
Size Interior
|
4000 Sqft |
|
Type
|
Offices |
|
Utility Water
|
Municipal Water |
Land
|
Acreage
|
No |
|
Size Depth
|
206 Ft |
|
Size Frontage
|
175 Ft |
|
Size Irregular
|
175 X 206 Ft |
|
Size Total Text
|
175 X 206 Ft |
|
Zoning Description
|
Highway Commercial (ch-29) |
https://www.realtor.ca/real-estate/29216213/13360-loyalist-parkway-prince-edward-county-hallowell-ward-hallowell-ward