3 Bedroom
3 Bathroom
2000 - 2500 sqft
Forced Air
$1,259,900
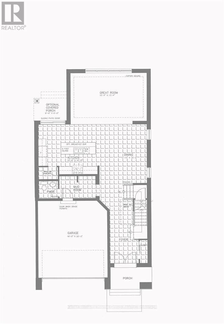
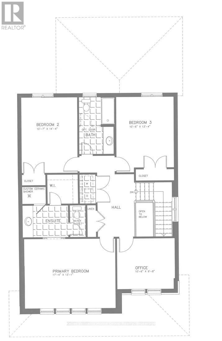
Welcome to 275 Green Gate Blvd.! This home is to be built modern by Terra View Homes. The home will be Net Zero Ready and is located within Moffat Creek in East Galt. This home is to be built on a walk out conservation lot featuring a double car garage, three generous bedrooms, 2 1/2 baths and 2327 sq ft beautifully finished. The open concept main floor features a gourmet kitchen with walk in pantry and large island as well as dining & great room which is perfect for hosting dinner parties and large gatherings of family and friends. Stay organized and keep the clutter away from the front entrance with an additional entryway from the garage with a two piece bathroom and a mud room. The outdoor space is a perfect oasis for kids to play, dogs to roam or gardeners to work with their hands. On the second floor of the home you will find an oversized primary suite with walk in closet and ensuite bathroom as well as two additional spacious bedrooms, an office space, a full bathroom and laundry. The basement will be roughed in for a future basement apartment which makes this home ideal for multigenerational living or as a mortgage helping income stream. Every amendity you could desire is nearby including trails, restaurants, grocery stores and shopping! All current promotions are reflected in the price of this home. (id:49187)
Property Details
|
MLS® Number
|
X12752102 |
|
Property Type
|
Single Family |
|
Equipment Type
|
Water Heater |
|
Features
|
Backs On Greenbelt, Sump Pump |
|
Parking Space Total
|
4 |
|
Rental Equipment Type
|
Water Heater |
|
Structure
|
Patio(s) |
Building
|
Bathroom Total
|
3 |
|
Bedrooms Above Ground
|
3 |
|
Bedrooms Total
|
3 |
|
Age
|
New Building |
|
Appliances
|
Garage Door Opener Remote(s), Water Heater - Tankless, Water Meter |
|
Basement Development
|
Unfinished |
|
Basement Features
|
Separate Entrance, Walk Out |
|
Basement Type
|
N/a, N/a (unfinished), N/a |
|
Construction Status
|
Insulation Upgraded |
|
Construction Style Attachment
|
Detached |
|
Exterior Finish
|
Brick, Vinyl Siding |
|
Foundation Type
|
Poured Concrete |
|
Half Bath Total
|
1 |
|
Heating Fuel
|
Natural Gas |
|
Heating Type
|
Forced Air |
|
Stories Total
|
2 |
|
Size Interior
|
2000 - 2500 Sqft |
|
Type
|
House |
|
Utility Water
|
Municipal Water |
Parking
Land
|
Acreage
|
No |
|
Sewer
|
Sanitary Sewer |
|
Size Depth
|
101 Ft |
|
Size Frontage
|
36 Ft |
|
Size Irregular
|
36 X 101 Ft |
|
Size Total Text
|
36 X 101 Ft |
|
Zoning Description
|
R4 |
Rooms
| Level |
Type |
Length |
Width |
Dimensions |
|
Second Level |
Primary Bedroom |
13.08 m |
10.58 m |
13.08 m x 10.58 m |
|
Second Level |
Bedroom |
14.33 m |
10.58 m |
14.33 m x 10.58 m |
|
Second Level |
Bedroom |
13.33 m |
10.5 m |
13.33 m x 10.5 m |
|
Second Level |
Office |
9.66 m |
10.5 m |
9.66 m x 10.5 m |
|
Main Level |
Kitchen |
12.75 m |
15.75 m |
12.75 m x 15.75 m |
|
Main Level |
Dining Room |
15.17 m |
11.92 m |
15.17 m x 11.92 m |
|
Main Level |
Great Room |
13.33 m |
19.33 m |
13.33 m x 19.33 m |
Utilities
|
Cable
|
Available |
|
Electricity
|
Installed |
|
Sewer
|
Installed |
https://www.realtor.ca/real-estate/29317000/275-green-gate-boulevard-cambridge