LOADING

292 Trafalgar Road Pembroke, Ontario K8A 5A8

1 Bathroom 3000 sqft
Fully Air Conditioned Forced Air

$389,000

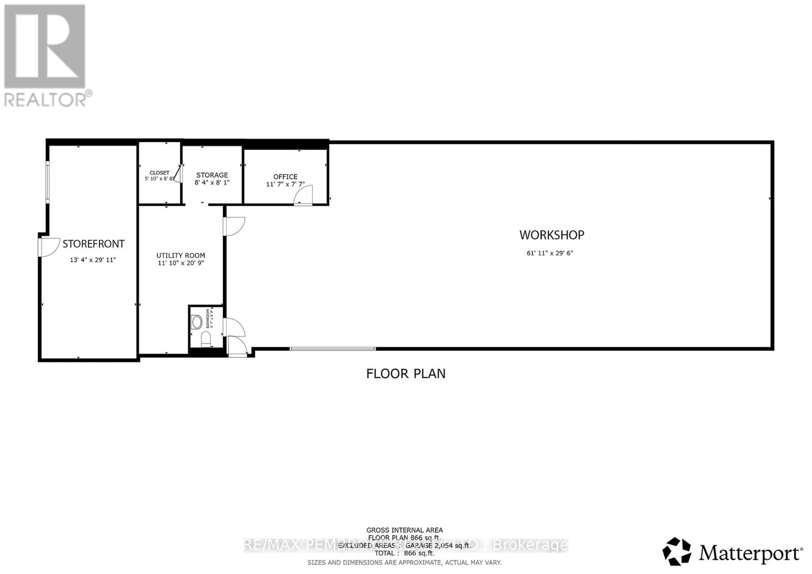
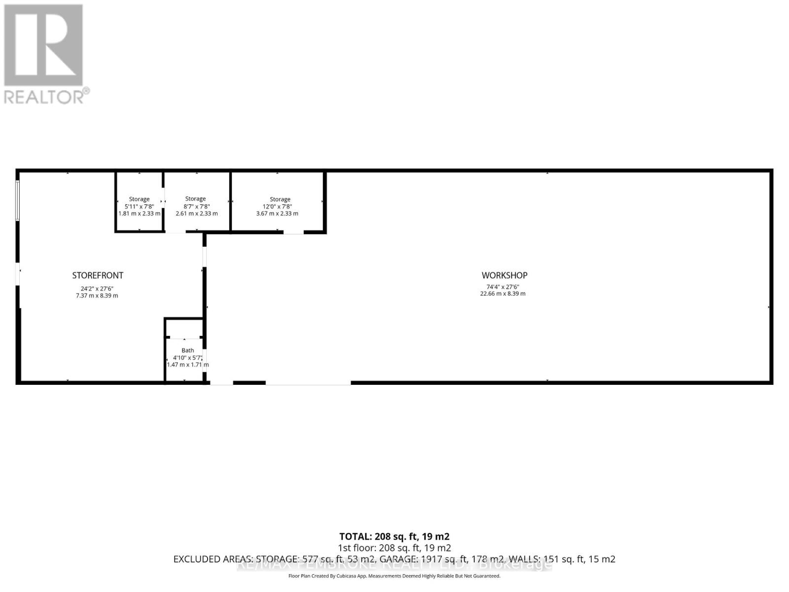
Well-Maintained Commercial Building with flexible use.This well-maintained commercial building, solid building, offers exceptional functionality and versatility. The property features a rubber torch-on roof in good condition, rooftop air units, natural gas heating, and a newer 200-amp electrical service.The front unit provides approximately 1,000 sq. ft. of bright retail or office space, ideal for customer-facing operations. The rear unit spans approximately 2,000 sq. ft. and is designed for operational efficiency, boasting 12-foot ceilings, sloped concrete floors, and 5-inch floor drains, making it well-suited for industrial, service, or light manufacturing uses.A large insulated garage door allows for convenient loading and unloading of trucks, enhancing functionality for a wide range of business applications. With its solid construction, modern mechanical features, and adaptable layout, this building lends itself to numerous commercial opportunities. (id:49187)

Property Details

MLS® Number X12745932
Property Type Retail
Community Name 530 - Pembroke
Parking Space Total 4

Building

Bathroom Total 1
Age 51 To 99 Years
Cooling Type Fully Air Conditioned
Heating Fuel Natural Gas
Heating Type Forced Air
Size Exterior 3000 Sqft
Size Interior 3000 Sqft
Utility Water Municipal Water

Land

Acreage No
Size Irregular Bldg=69.96 X 132 Acre
Size Total Text Bldg=69.96 X 132 Acre
Zoning Description C 2

https://www.realtor.ca/real-estate/29310152/292-trafalgar-road-pembroke-530-pembroke

Your Favourites

 

No Favourites Found