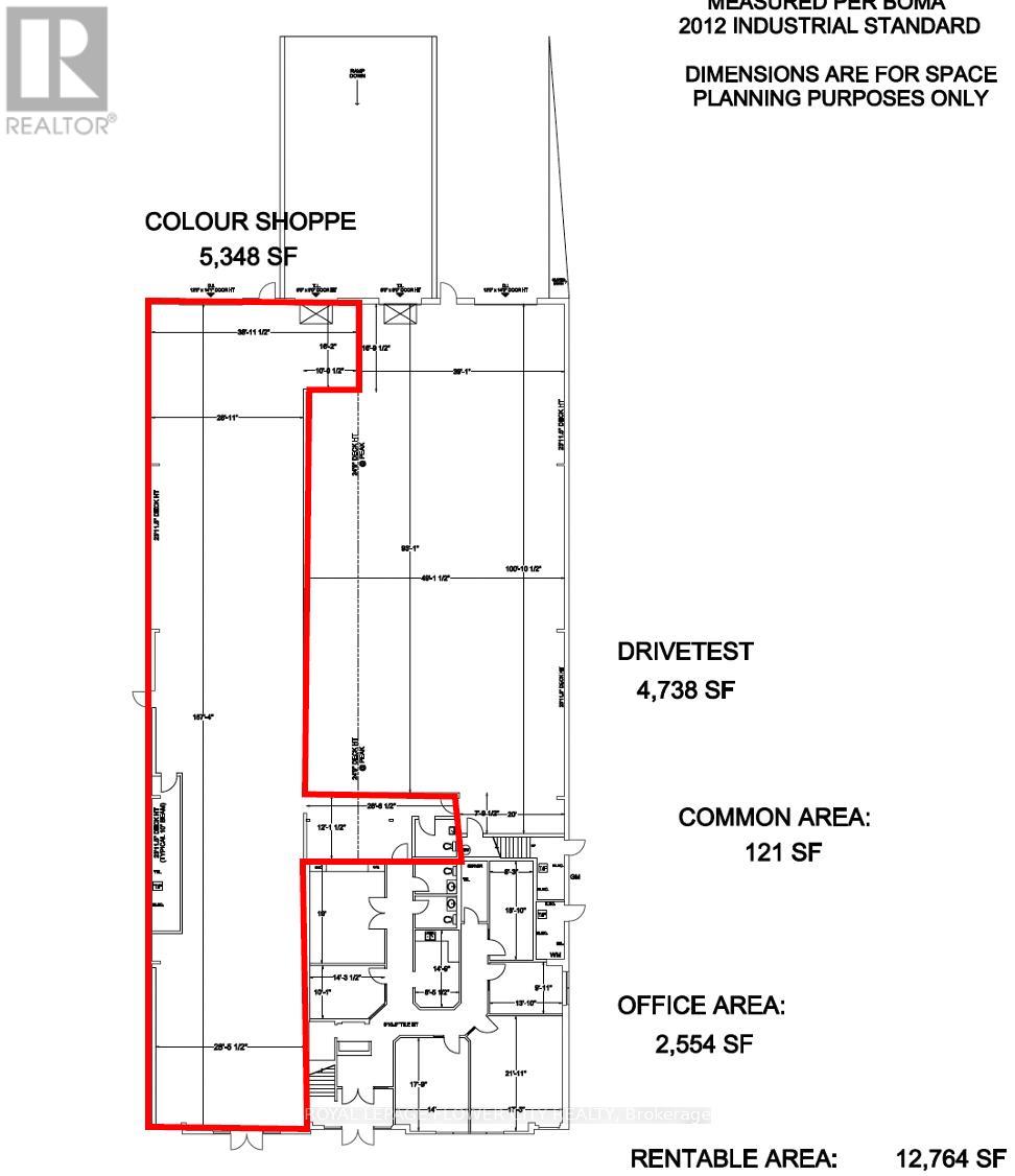
5348 sqft
Partially Air Conditioned, Fully Air Conditioned
Forced Air
Acreage
$15 / ft2
Professionally managed industrial unit available for lease, suitable for retail, service industrial, manufacturing, warehousing, or recreational uses. Strategically located in Brantford, offering excellent exposure, a strong labour pool, and rapid access to Highway 403. High traffic location enhanced by neighbouring DriveTest tenancy. (id:49187)
Business
|
Business Type
|
Industrial |
|
Business Sub Type
|
Warehouse |
Property Details
|
MLS® Number
|
X12747986 |
|
Property Type
|
Industrial |
|
Amenities Near By
|
Highway, Public Transit |
Building
|
Cooling Type
|
Partially Air Conditioned, Fully Air Conditioned |
|
Heating Fuel
|
Natural Gas |
|
Heating Type
|
Forced Air |
|
Size Interior
|
5348 Sqft |
|
Type
|
Warehouse |
|
Utility Water
|
Municipal Water |
Land
|
Acreage
|
Yes |
|
Land Amenities
|
Highway, Public Transit |
|
Size Irregular
|
5348 |
|
Size Total
|
5348 Ac |
|
Size Total Text
|
5348 Ac |
|
Zoning Description
|
M2 |
https://www.realtor.ca/real-estate/29312097/41-morton-avenue-e-brantford