LOADING

5 - 9 Princess Avenue St. Thomas, Ontario N5R 3V3

2975 sqft
Fully Air Conditioned Forced Air Acreage

$11 Monthly

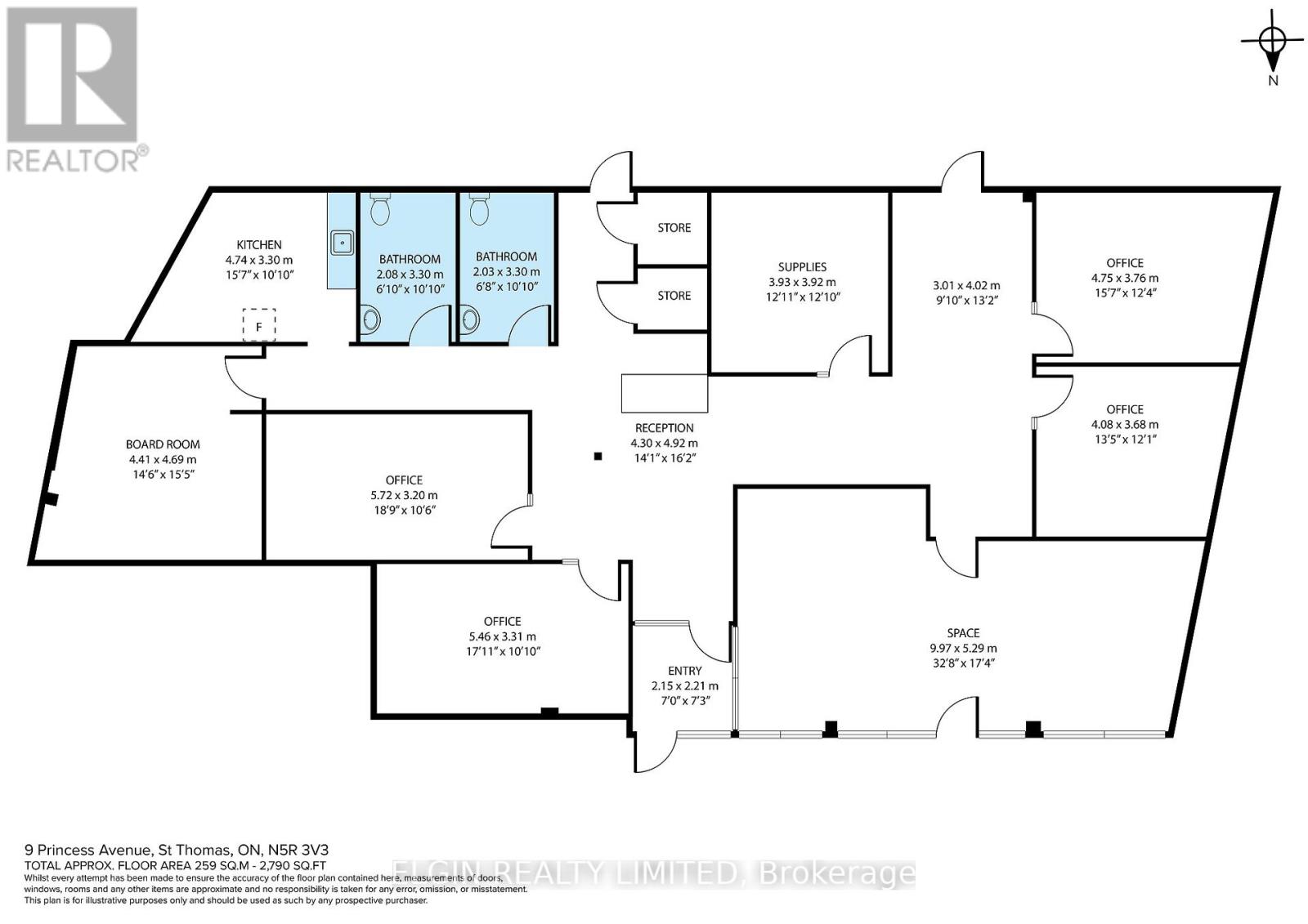
Approximately 2975 sq ft available. Attractive highly visible location in the heart of Downtown St Thomas. Bright, clean, large windows. Currently divided into large offices with central reception area. Plenty of parking. Good signage. Current tenants include Insurance office, Pizza restaurant, and Hair stylist. Preferred terms & rates for long term tenant. (id:49187)

Property Details

MLS® Number X12745804
Property Type Retail
Community Name St. Thomas

Building

Cooling Type Fully Air Conditioned
Heating Fuel Natural Gas
Heating Type Forced Air
Size Interior 2975 Sqft
Utility Water Municipal Water

Land

Acreage Yes
Size Frontage 406 Ft ,1 In
Size Irregular 2975
Size Total 2975 Ac
Size Total Text 2975 Ac
Zoning Description C2

https://www.realtor.ca/real-estate/29310031/5-9-princess-avenue-st-thomas-st-thomas

Your Favourites

 

No Favourites Found